Servicio De Arquitectura

$ Consultar

Anunciante

GRUPO VIICA

VIICA - Vida, Ingeniería, Construcción y Arquitectura

Domicilio: Belice 768 (O)

Ubicacion: Rivadavia - San Juan

Antiguedad:

Aviso Código: 2500073

Visitas: 122

Publicado: 21/07/2025

Actualizado: 09/12/2025


Denunciar este anuncio



Descripción del Servicio

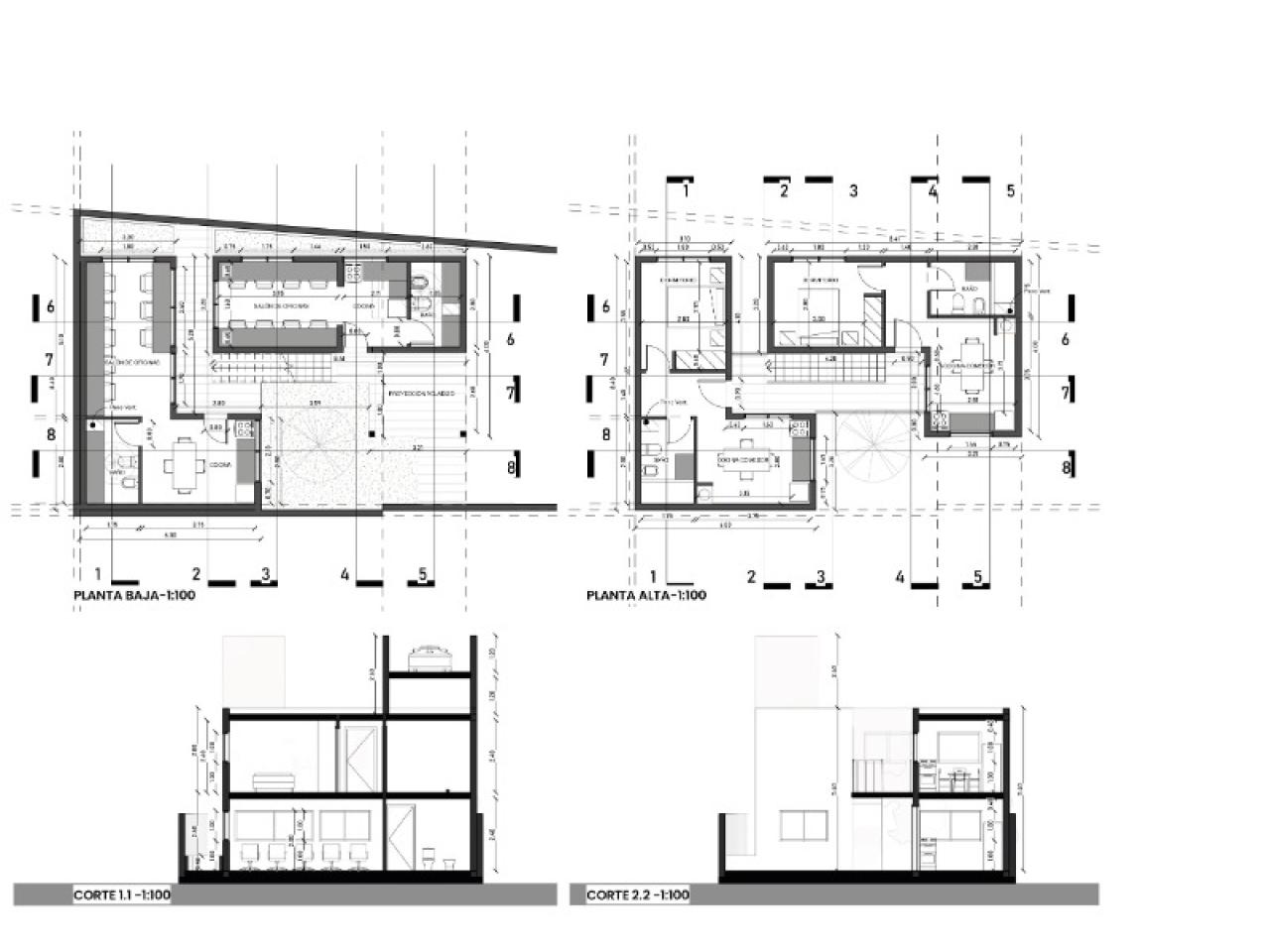
Ofrecemos servicios integrales de arquitectura para viviendas, locales comerciales y todo tipo de obras, nuevas o existentes.
Nos especializamos en el diseño funcional, estético y técnico, adaptado a cada cliente y al contexto de su proyecto.
Desarrollamos proyectos completos: planos, documentación técnica, asesoramiento personalizado, renderizados y gestión de obra.
Trabajamos con compromiso, claridad y acompañamiento en cada etapa del proceso.

GRUPO VIICA a tu servicio.
INGENIERÍA – CONSTRUCCIÓN – ARQUITECTURA

Zonas de Cobertura

25 de Mayo:

9 de Julio:

Albardón:

Angaco:

Calingasta:

Capital:

Caucete:

Chimbas:

Iglesia:

Jáchal:

Pocito:

Rawson:

Rivadavia:

San Martín:

Santa Lucía:

Sarmiento:

Ullum:

Valle Fértil:

Zonda:

Consultas al Vendedor

07/12/2025

Buenos días, cuál es el costo para diseñar y aprobar plano arquitectónico y estructural por m2 de plano? Usr71854

09/12/2025

Respondido en privado

Publicaciones Similares

Habilitaciones San Juan

Consultar

Actualizado: Hace 2 días

137 Visitas

Proyecto, Construccion.

Consultar

Actualizado: 08/12/2025

391 Visitas

Construcciones Civiles

$ 280.000

Actualizado: Hoy

34 Visitas

Poliuretano Expandido

Consultar

Actualizado: Hoy

1354 Visitas

Construccion Steell Freming ,financiacion Propia

$ 35.000

Actualizado: Hoy

1270 Visitas

Modulos Habitacionales - Viviendas Modulares

Consultar

Actualizado: Ayer

1245 Visitas

Urbanizamos Su Finca - Propietario 100% Ganancia - 2644704064

Consultar

Actualizado: Ayer

5577 Visitas

Construi Con Brimax Construcciones

Consultar

Actualizado: Ayer

854 Visitas

Remodelaciones Comerciales Y Residenciales

Consultar

Actualizado: Ayer

696 Visitas

Realizamos Tu Idea De Hogar En Auto Cad

Consultar

Actualizado: Ayer

28 Visitas

...y vaaaaaaarios mas