A convenir - Recibo Permutas
Aviso Código: 2548530
Visitas: 31
Publicado: Ayer
Actualizado: Ayer
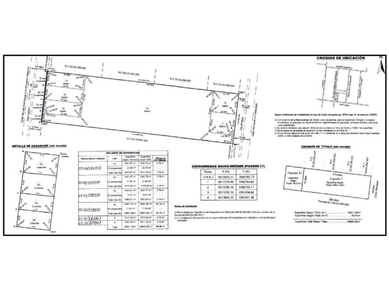
Lotes públicos y privados en Santa Lucia, 
El barrio se divide en dos zonas; una parte pública que cuenta con 5 lotes, tres con frente a calle Balcarce y dos con frente a calle Alemania , superficie aproximada de 1.050m2, APTOS PARA ESCRITURAR.
Otros 10 lotes privados, también con superficies de 1050m2 ubicados con orientación sur - norte . Esta etapa se encuentra en proceso de urbanización y aprobación en la Dirección de Planeamiento y Desarrollo Urbano, y la Dirección de Geodesia y Catastro.
◄ Instalación eléctrica subterránea.
◄ Servicio de agua potable.
◄ Servicio de red cloacal (Solo en lotes con frente a calle Balcarce).
Recibo movilidades - Amplia financiación                          
Superficie total:1050
Superficie cubierta:
Antiguedad:Menos de 5 años
Baños:Sin especificar
Ambientes:Sin especificar
Garages:Sin especificar
Dormitorios:Sin especificar
Orientación:Sin especificar
Apto crédito:NO
En barrio privado:NO
Calle:Balcarce
Barrio:
Número:1725
Departamento:Santa Lucia
Orientación:Sur
Comentario:
Venta. Casa B° Privado El Bosque
Venta. Oportunidad Imperdible - Finca En Angaco
Venta Finca. Oportunidad Imperdible. Pocito
U$S 25.000
Hoy
893
U$S 12.000
Hoy
2680
U$S 30.000
Hoy
1469
U$S 15.000
Hoy
1755
$ 4.650.000
Ayer
12596
U$S 15.523
Ayer
6670
Venta. Barrio Privado Camino Puente Viejo Lotes De 600mts2
Actualizado: Hoy
4168 Visitas
Venta. Terreno En Santa Lucía, Calle Angualasto
Actualizado: Hoy
1841 Visitas
Venta De Terreno - Barrio Itati, Santa Lucía
Actualizado: Hoy
1166 Visitas
Venta. Terreno En Santa Lucia. 1500 M2, Barrio Privado Aimara, Listo Para Escriturar
Actualizado: Hoy
893 Visitas
Venta. Oportunidad, Lote De 657 M2 En Santa Lucia, Listo Para Escriturar, Se Financia Hasta El 50%
Actualizado: Hoy
2680 Visitas
Lotes En Barrrio Privado Desde 800 M2. Amancay
Actualizado: Hoy
1133 Visitas
Venta De Terrenos Financiacion Propia | Barrio Privado Campo La Legua | Santa Lucia |
Actualizado: Hoy
1469 Visitas
últimos Días De Precio Rebajado Liquido Lote De 1.500mts2 En Hermoso Barrio Privado Villa Verde 2
Actualizado: Hoy
1755 Visitas
Venta Lote Barrio Privado Brisas. Santa Lucia
Actualizado: Hoy
592 Visitas
Oportunidad Venta Lote De Gran Dimensión En Santa Lucia Por Ruta 20
Actualizado: Hoy
216 Visitas
Actualizado: Ayer
12596 Visitas
Venta. Terreno En Santa Lucia. Barrio Privado Sobre Ruta 20
Actualizado: Ayer
221 Visitas
🤝 Gloria Madueño Vende 🤝 Barrio Abierto En Santa Lucia. Andes 6. Terrenos 560 M2
Actualizado: Ayer
6670 Visitas
Venta De Lote Santa Lucia Barrio Privado Aimara
Actualizado: 29/10/2025
496 Visitas