Venta Domo Amoblado, A Construir, Barreal. Mls#420981044-491

U$S 70.000

($ 99.400.000)?

Anunciante

RE/MAX CUYANA

Alcanza lo que Soñas, Mudate a la Vida que Queres. Mudate con RE/MAX CUYANA. Lider Mundial en Servicios Inmobiliarios

Domicilio: Hipolito Yrigoyen Este 1342

Ubicacion: Capital - San Juan

Antiguedad:

Aviso Código: 2530235

Visitas: 293

Publicado: 22/09/2025

Actualizado: Hoy


Denunciar este anuncio



Caracterí­sticas

VENTA DOMO 1 DORMITORIO AMOBLADO, A CONSTRUIR, BARREAL
ESPACIO COCHERA.
ZONA CALLE LOS ENAMORADOS Y LAS HERAS. CALINGASTA.

Descripción del Domo.

 Superficie Terreno 156 m2 Aprox-
 Superficie Cochera 12,5m2 Aprox-
 Superficie Cubierta 36,8 m2 Aprox-
 Cocina Comedor.-
 1 Dormitorios.-
 1 Baño completo.-

Equipamiento
 Termotanque Electrico.-
 Mesada con alacena y bajo mesada con cajonera y puertas en melamina.-
 Mesa y sillas.-
 Aire Acondicionado.-
 Heladera.-
 Cocina.-
 Televisión.-

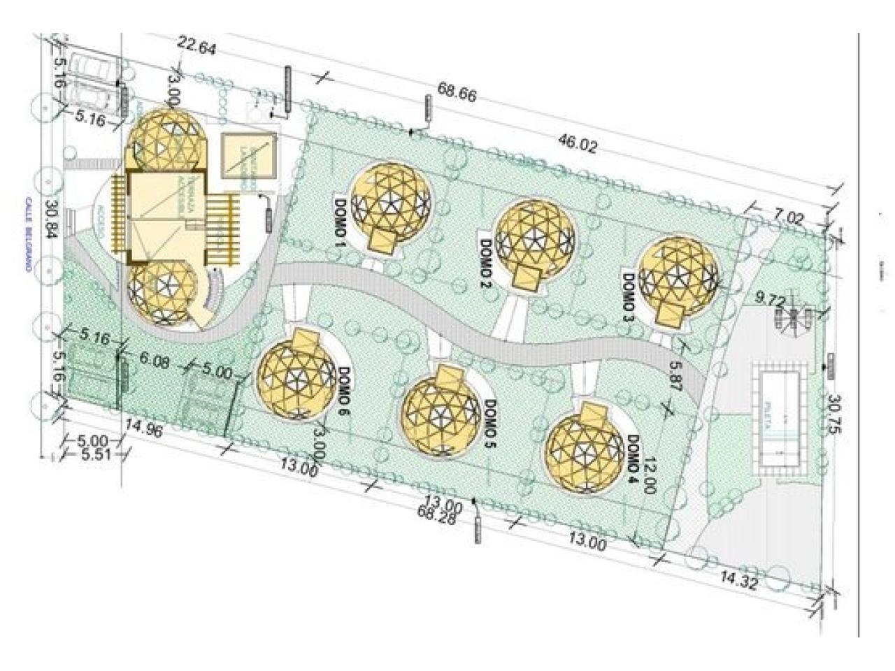
Descripción del Complejo
• 6 Domos de hospedaje: espacios exclusivos con amenities premium.
• 1 Domo central: destinado a fines gastronómicos y a la administración del complejo.
• Integración con el entorno: vegetación autóctona, vistas panorámicas y un diseño que respeta el paisaje.
• Piscina
• Solárium
• Observatorio
• Restaurante
• Estacionamiento
• Zona fogonero

UBICACIÓN ESTRATÉGICA
Barreal, Calingasta–Un destino en crecimiento

El complejo se encuentra en Calle Los Enamorados, en el Departamento de Barreal, Calingasta, un área de gran atractivo natural y turístico.
Distancias clave:
• 210 km de la ciudad de San Juan
• 220 km del Aeropuerto de San Juan
• 242 km del Aeropuerto de Mendoza
• 117 km de Uspallata
• 168 km de Potrerillos

A solo 1 km de la Plaza San Martín, el hospital y la estación de servicio más cercana.

Ante cualquier consulta, no dudes en contactarnos!

MLS#420981044-491
www.remax.com.ar/420981044-491

_________________________________________________________________________________________
Martillero Público y Corredor Inmobiliario: MAURO SOSA MEGLIOLI CPCISJ 123

Todas las propiedades que figuran en mi perfil se encuentran a cargo del profesional matriculado de la oficina, la intermediación y la conclusión de las operaciones serán llevadas exclusivamente por él.

Superficie total:156 m2 aprox.

Superficie cubierta:36 m2 approx.

Antiguedad:Sin especificar

Baños:Sin especificar

Ambientes:Sin especificar

Garages:Sin especificar

Dormitorios:1

Orientación:Sin especificar

Apto crédito:NO

En barrio privado:NO

Ubicación

Calle:LOS ENAMORADOS, S/N, LOTE 5

Barrio:

Número:Sin especificar

Departamento:Calingasta

Orientación:Sin especificar

Comentario:

Consultas al Vendedor

Publicaciones Similares

Venta Casa Zona Turística

U$S 48.000

Actualizado: 27/10/2025

1459 Visitas

Venta - Casa A Restaurar En Barreal - 577m2 Terreno

U$S 35.000

Actualizado: Hoy

600 Visitas

Venta O Permuta Casa Barreal

U$S 100.000

Actualizado: Hoy

1953 Visitas

Venta De Casa En Tamberias

Consultar

Actualizado: Ayer

371 Visitas

Importante Inmueble En Barreal

U$S 130.000

Actualizado: Ayer

7692 Visitas

Acogedora Casa Amoblada En Barreal

U$S 130.000

Actualizado: Ayer

6628 Visitas

Venta. Casa Con Salón Comercial En Calingasta

U$S 62.000

Actualizado: Ayer

2132 Visitas

Vendo Casa, 2 Dormitorios En Calingasta

U$S 57.000

Actualizado: Hace 2 días

575 Visitas

Venta. Casa A Estrenar Barreal. Calingasta

Consultar

Actualizado: Hace 3 días

426 Visitas

Venta Casa En Barreal. Calingasta

U$S 200.000

Actualizado: Hace 3 días

637 Visitas

...y varios mas